Планировка
О коттеджном посёлке
Галерея
Контакты
Главная
/
Коттедж 1 типа
Коттедж 1 типа
Забронировать дом
Актуальная стоимость:
42 000 000 рублей
Посмотрите видео-обзор коттеджного посёлка
Оставьте свои контакты и наш менеджер свяжется с Вами
Отправить
Нажимая кнопку “Отправить”, вы принимаете
Политику конфиденциальности
нашей компании
Размер участка
4,6
соток
Площадь застройки
75
соток
3,2
метра
Высота потолков
Площадь
дома
202
кв.м.
Планировка
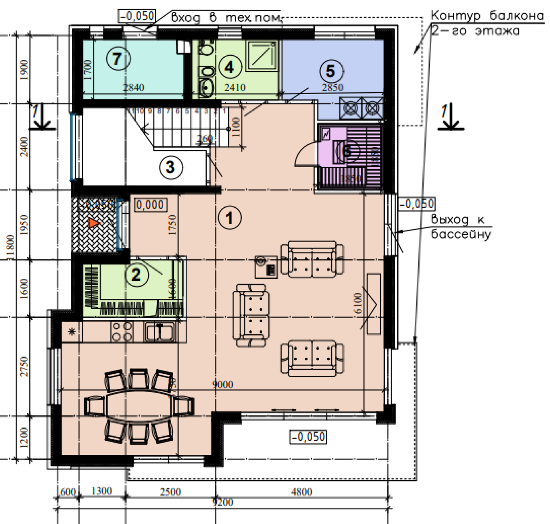
Первый этаж
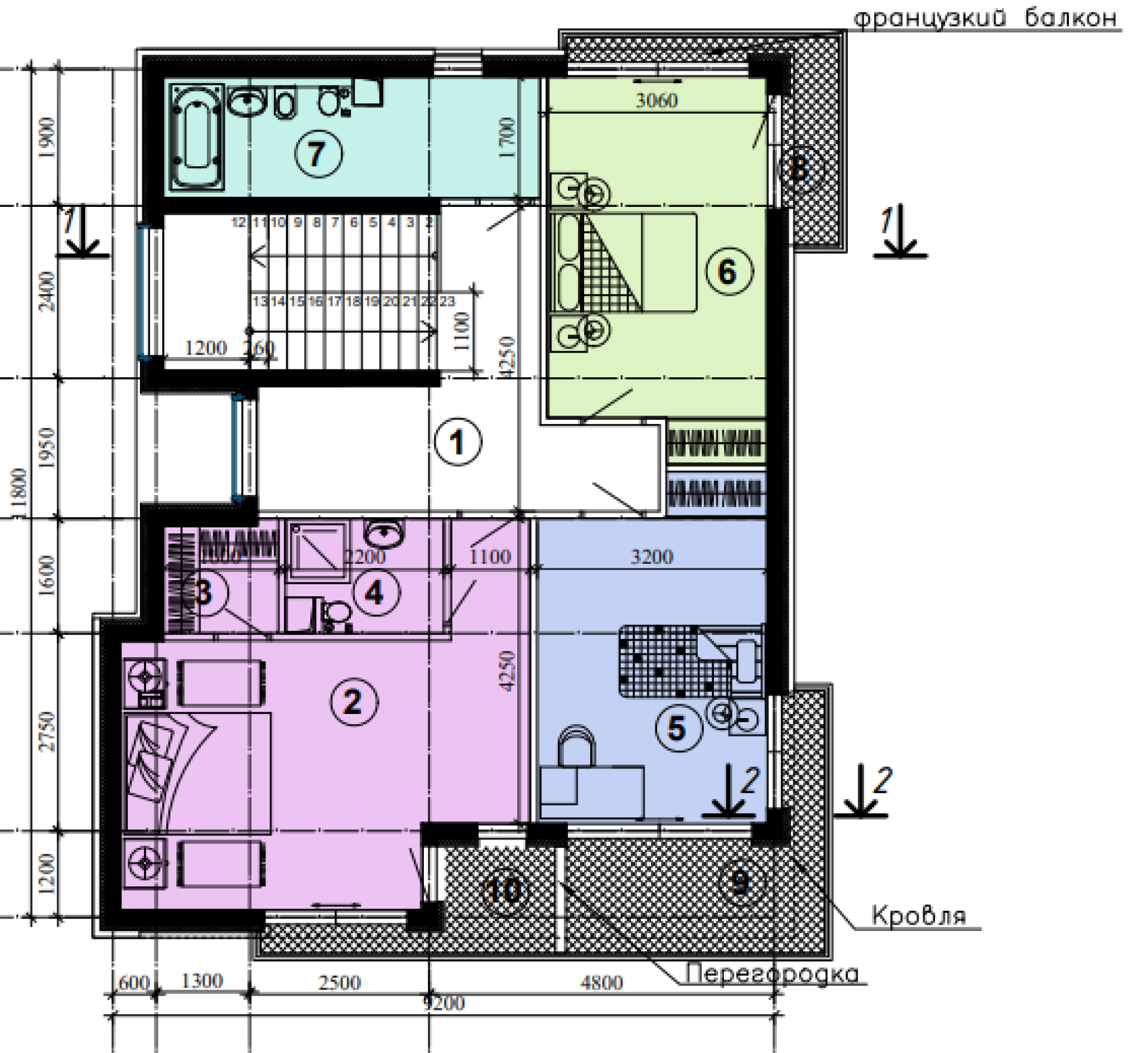
Второй этаж
Экспликация помещений
Итого:
87.2 м²
Кухня-гостинная
Гардеробная
Кладовая (под лестничной клеткой)
Санузел
Прачечная
Сауна
Техническое помещение
Экспликация помещений
Итого:
92.1 м²
57.5 м²
4.1 м²
7.7 м²
4.0 м²
5.8 м²
3.4 м²
4.7 м²
57.5 м²
4.1 м²
7.7 м²
4.0 м²
5.8 м²
3.4 м²
4.7 м²
Коридор
Мастер-Спальня
Гардеробная
Санузел
Спальня
Спальня
Санузел
Балкон
Балкон
Балкон
13.0 м²
21.4 м²
2.4 м²
3.5 м²
14.5 м²
15.4 м²
8.9 м²
3.1 м²
6.8 м²
3.1 м²
О коттеджном посёлке
Первая очередь введена в эксплуатацию!
Ввод в эксплуатацию второй очереди 4 квартал 2024
Когда за каждым окном своя — особенная атмосфера
Инфраструктура
У каждого дома:
озеленение
зона барбекю
бассейн 18 кв.м.
стоянка на 2 авто
вид на горы и Нац.парк
Коммуникации
Все центральные:
Газ
Канализация
Водоснабжение
Электричество 15кВт
(с возможностью увеличения)
фасад и отделка
Коттеджи в 2 этажа
Все дома утеплены
Вентилируемый фасад
Отделка фасада: клинкерный кирпич и камешковая штукатурка
Отделка дома: черновая
Территория огорожена забором
Галерея
У Вас возникли вопросы?
Оставьте свои контакты, наш менеджер свяжется
с Вами и ответит на все интересующие вопросы!
Отправить
Нажимая кнопку «Отправить», вы принимаете
Политику конфиденциальности
нашей компании
Наши контакты
Телефон для связи:
+7 (965) 111-28-88
Почта:
atmosfera_village@mail.ru
Адрес коттеджного посёлка:
г. Сочи, Барановское шоссе 10В
© 2024 Atmosfera Village
Политика конфиденциальности
© 2024 Atmosfera Village
Наверх
Made on
Tilda